
Großes Gebäude in Daubitz sucht nach langem Leerstand und Notsicherungsmaßnahmen neue BesitzerInnen
Zum Gebäude:
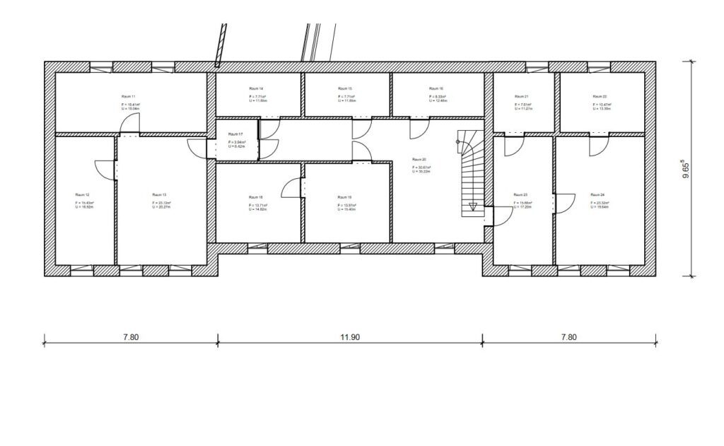
Es ist ein denkmalgeschütztes Gebäude mit einer großen Ladenfläche und symetrisch angeordneten Wohnungen. Die Grundrisse geben gute Möglichkeiten einerseits Rückzugsräume, aber in der Mitte dazwischen auch Gemeinschaftsräume zu schaffen. 2017 wurden Sicherungsmaßnahmen abgeschlossen, um den Verfall aufzuhalten. Um das Gebäude nutzen zu können, sind im Vorfeld umfangreiche Sanierungsmaßnahmen nötig.
Organisatorisches:
Als Gemeinde wollen wir absichern, dass die nächsten BesitzerInnen die Möglichkeiten und Ideen haben, um das Gebäude wieder nutzbar zu machen. Aus diesem Grund vergeben wir dieses Gebäude nur an Menschen, die im Vorfeld bei uns ein Konzept einreichen, mit dem Sie darlegen, was Sie vorhaben und auf welche Weise Sie die Sanierungen finanzieren wollen. Desweiteren freuen wir uns über Nutzungen, die sich dem Dorf öffnen und Aktivitäten, die das Dorfleben bereichern.
Im Gegenzug ist das Mindestgebot 10.000€.
Bei der Gruppenfindung und Fragen rund ums gemeinschaftliche Wohnen wird die Projektgruppe von der Dezentrale (www.dezentrale-sachsen.de) unterstützt und beraten.
Bei Interesse oder Fragen melden Sie sich gerne per Telefon bei
Ralf Berhmer, Bürgermeister Gemeinde Rietschen: 035772/ 421 12
Beschreibung:
Dorfstraße 43
02956 Rietschen, OT Daubitz
Gemarkung Daubitz, Flur 7, FlSt. 29
Kaufpreis: 10.000€ Mindestgebot im Zusammenhang mit einem Konzept
Grundstücksfläche: 2.787 m²
Wohnfläche: ca. 415 m² (EG + OG)
Zustand: unsaniert
Baujahr: um 1900
Denkmalschutz: ja
Besichtigung: nach Vereinbarung
Gemeinde Rietschen
Liegenschaftsverwaltung
Forsthausweg 2
02956 Rietschen





